Загородный дом с цокольным этажом № W-361-1K

![]() |
![]() | ![]() | ![]() | ![]() |
| Общая площадь: | 360.5 м2 |
| Жилая площадь: | 107.4 м2 |
| Габариты: | 15 x 12.92 м |
| Цоколь: | Есть |
| Мансарда: | Нет |
| Спальни и жилые комнаты (кроме гостиных): | 4 шт |
| С/у, ванны: | 2 шт |
| Сауна: | Нет |
| Бассейн: | Нет |
| Бильярд: | Нет |
| Спорткомплекс: | Нет |
| Зимний сад: | Нет |
| Гараж: | Встр. (1а/м) |
ЦЕНА АС:
37 100 рубЦены всеx комплектаций
РЕЙТИНГ (оценок нет)
| Внешний вид: | 1 2 3 4 5 |
| Планировки: | 1 2 3 4 5 |
ПОДГОТОВКА ПРОЕКТА
| 3-5 рабочих дня |
АКЦИИ НА ЭТОТ ПРОЕКТ:
Бесплатная доставка проекта
подробнее
ОБЗОРЫ ПО ПРОЕКТУ:
Категории проекта: Проекты кирпичных домов, проекты трехэтажных домов, проекты домов с цокольным этажом
АННОТАЦИЯ
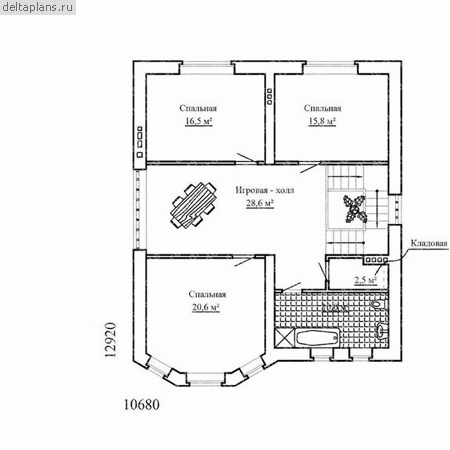
Большой загородный дом с цокольным этажом, наружные стены запроектированы из кирпича. В доме три этажа: цокольный этаж отведен под хозяйственные помещения, на первом расположена зона общесемейного досуга, второй этаж отведен под приватную зону спален. Помещение гостиной занимает внушительную площадь этажа, в ней запроектирован камин. Для хозяина дома предусмотрен кабинет. При необходимости это помещение можно использовать как гостевую или спальню для пожилого члена семьи. Позади встроенного гаража для одного автомобиля располагается помещение топочной с отдельным выходом на улицу. Три спальни второго этажа выходят в просторны холл˗игровую.
ПЛАН ДОМАцоколь высота: 2.8 м![]() 1-й этаж высота: 3.00 м ![]() 2-й этаж высота: 3.00 м ![]() |
ФАСАДЫ ДОМАвид спереди![]() вид слева ![]() вид справа ![]() вид сзади ![]() |
МАТЕРИАЛЫ ДЛЯ СТРОИТЕЛЬСТВА ДОМА:Фундаменты – Ленточный сборный
|
ПРОЕКТ ДОМА ЦЕНА
| Комплектация: | Цена (руб): |
| Архитектурно-строительные чертежи | 37 100 |
| Доп. комплект чертежей без лицензии (копия для строителей) ** | 2 500 |
| Паспорт проекта ** | 2 500 |
| Дополнительные услуги: | Цена (руб): |
(**) Паспорт проекта и Доп. комплект чертежей без лицензии (копия для строителей) отдельно от основного комплекта не продаются.
Купить проект















Для добавления комментария пожалуйста зарегистрируйтесь или войдите в систему.
Всю ответственность за размещаемые материалы и содержащиеся в них сведения несут их авторы.