Проект кирпичного дома № V-190-2K

![]() |
![]() | ![]() | ![]() | ![]() |
| Общая площадь: | 193 м2 |
| Габариты: | 15.19 x 13.82 м |
| Цоколь: | Есть |
| Мансарда: | Нет |
| Спальни и жилые комнаты (кроме гостиных): | 4 шт |
| С/у, ванны: | 3 шт |
| Сауна: | Нет |
| Бассейн: | Нет |
| Бильярд: | Нет |
| Спорткомплекс: | Нет |
| Зимний сад: | Нет |
| Гараж: | Нет |
ЦЕНА АС:
36 000 рубЦены всеx комплектаций
РЕЙТИНГ (оценок нет)
| Внешний вид: | 1 2 3 4 5 |
| Планировки: | 1 2 3 4 5 |
ПОДГОТОВКА ПРОЕКТА
| 10-15 рабочих дня |
АКЦИИ НА ЭТОТ ПРОЕКТ:
Доработка проекта
подробнее
В данный проект возможно внести изменения.
Также читайте статью: внесение изменений в типовой проект.
Также читайте статью: внесение изменений в типовой проект.
ОБЗОРЫ ПО ПРОЕКТУ:
По данному проекту обзоров пока нет
Планы/Фасады
Материалы
Варианты (1)
Цены
Форум и отзывы
Категории проекта: Проекты кирпичных домов, проекты трехэтажных домов, проекты домов с цокольным этажом
АННОТАЦИЯ
Описания нет.
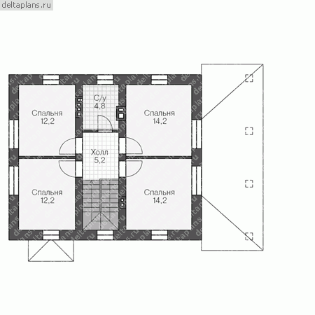
ПЛАН ДОМАцоколь![]() 1-й этаж ![]() 2-й этаж ![]() |
ФАСАДЫ ДОМАвид спереди![]() вид слева ![]() вид справа ![]() вид сзади ![]() |
МАТЕРИАЛЫ ДЛЯ СТРОИТЕЛЬСТВА ДОМА:Фундамент – монолитная ж/б плита |
ВАРИАНТЫ ПРОЕКТА
ПРОЕКТ ДОМА ЦЕНА
| Комплектация: | Цена (руб): |
| Архитектурно-строительные чертежи | 36 000 |
| Доп. комплект чертежей без лицензии (копия для строителей) ** | 2 000 |
| Паспорт проекта ** | 5 000 |
| Дополнительные услуги: | Цена (руб): |
| Добавить гараж (цена от) | 20 000 |
| Изменение типа перекрытий (цена от) | 15 000 |
| Изменение типа фундамента (цена от) | 15 000 |
(**) Паспорт проекта и Доп. комплект чертежей без лицензии (копия для строителей) отдельно от основного комплекта не продаются.
Купить проект













Для добавления комментария пожалуйста зарегистрируйтесь или войдите в систему.
Всю ответственность за размещаемые материалы и содержащиеся в них сведения несут их авторы.