
МАТЕРИАЛЫ ДЛЯ СТРОИТЕЛЬСТВА ДОМА:Фундамент – монолитная ж/б плита
|
РАСХОД ОСНОВНЫХ МАТЕРИАЛОВ:
|
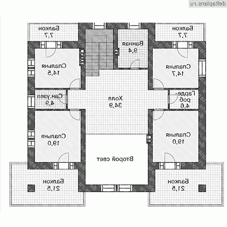
ПЛАН ДОМА1-й этаж![]() 2-й этаж ![]() |
ФАСАДЫ ДОМАвид спереди![]() вид слева ![]() вид справа ![]() вид сзади ![]() |
![]() |
Доработка проекта В данный проект возможно внести изменения. |
![]() |
Чертежи фундамента сразу после оплаты Если строители уже на участке и Вам срочно нужен проект, мы можем выслать чертежи фундамента сразу после оплаты проектной документации. Срок подготовки проекта, как правило, 3-4 рабочих дня (для регионов плюс время на доставку). |
![]() |
Бесплатная доставка проекта На этот проект предусмотрена бесплатная доставка (только на территории РФ). |
| Комплектация: | Цена (руб): |
| Архитектурно-строительные чертежи | 42 000 |
| Доп. комплект чертежей без лицензии (копия для строителей) ** | 2 000 |
| Паспорт проекта ** | 5 000 |
| Дополнительные услуги: | Цена (руб): |
| Добавить гараж (цена от) | 20 000 |
| Изменение типа перекрытий (цена от) | 10 000 |
| Изменение типа фундамента (цена от) | 10 000 |
(**) Паспорт проекта и Доп. комплект чертежей без лицензии (копия для строителей) отдельно от основного комплекта не продаются.
Срок получения чертежей - от 1 до 5 дней.
Задать вопрос или заказать проект Вы можете по телефонам: (495) 505-29-81
Адрес офиса: Москва, ул. Новая Басманная, д.19, офис 504.
Каталог проектов deltaplans.ru
E-mail: info@deltaplans.ru