Проект пенобетонного дома из теплой керамики № U-240-2P

![]() |
![]() | ![]() | ![]() | ![]() |
| Общая площадь: | 239.17 м2 |
| Жилая площадь: | 100.95 м2 |
| Площадь застройки: | 231.55 м2 |
| Габариты: | 13.66 x 11.5 м |
| Высота в коньке: | 9.34 м |
| Цоколь: | Нет |
| Мансарда: | Есть |
| Комната на 1ом этаже: | Есть |
| Спальни и жилые комнаты (кроме гостиных): | 5 шт |
| С/у, ванны: | 4 шт |
| Сауна: | Нет |
| Бассейн: | Нет |
| Бильярд: | Нет |
| Спорткомплекс: | Есть |
| Зимний сад: | Есть |
| Гараж: | Встр. (1а/м) |
ЦЕНА АС:
38 000 рубЦены всеx комплектаций
РЕЙТИНГ (оценок нет)
| Внешний вид: | 1 2 3 4 5 |
| Планировки: | 1 2 3 4 5 |
ПОДГОТОВКА ПРОЕКТА
| 3-4 рабочих дня |
АКЦИИ НА ЭТОТ ПРОЕКТ:
В наличии в офисе
подробнее
Приехав к нам в офис, Вы можете:
- ознакомиться с этим проектом на месте;
- получить по проекту необходимую консультацию;
- сразу его приобрести.
Перед приездом обязательно забронируйте проект по телефону.
- ознакомиться с этим проектом на месте;
- получить по проекту необходимую консультацию;
- сразу его приобрести.
Перед приездом обязательно забронируйте проект по телефону.
Доработка проекта
подробнее
Чертежи фундамента сразу после оплаты
подробнее
Бесплатная доставка проекта
подробнее
ОБЗОРЫ ПО ПРОЕКТУ:
По данному проекту обзоров пока нет
Планы/Фасады
Материалы
Варианты (2)
Цены
Форум и отзывы
Категории проекта: Проекты пенобетонных домов, проекты двухэтажных домов, проекты домов с мансардой, проекты домов из поризованного камня (RAUF, KNAUF)
АННОТАЦИЯ
Описания нет.
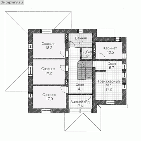
ПЛАН ДОМА1-й этаж высота: 3.02 м![]() мансарда высота: 1.995 - 5.63 м ![]() |
ФАСАДЫ ДОМАвид спереди![]() вид слева ![]() вид справа ![]() вид сзади ![]() |
МАТЕРИАЛЫ ДЛЯ СТРОИТЕЛЬСТВА ДОМА:Фундамент – монолитная ж/б плита
|
РАСХОД ОСНОВНЫХ МАТЕРИАЛОВ:
|
ВАРИАНТЫ ПРОЕКТА
ПРОЕКТ ДОМА ЦЕНА
| Комплектация: | Цена (руб): |
| Архитектурно-строительные чертежи | 38 000 |
| Доп. комплект чертежей без лицензии (копия для строителей) ** | 2 000 |
| Паспорт проекта ** | 5 000 |
| Дополнительные услуги: | Цена (руб): |
| Добавить гараж (цена от) | 20 000 |
| Изменение типа перекрытий (цена от) | 15 000 |
| Изменение типа фундамента (цена от) | 15 000 |
(**) Паспорт проекта и Доп. комплект чертежей без лицензии (копия для строителей) отдельно от основного комплекта не продаются.
Купить проект













Для добавления комментария пожалуйста зарегистрируйтесь или войдите в систему.
Всю ответственность за размещаемые материалы и содержащиеся в них сведения несут их авторы.