Двухэтажный дом в классическом стиле № T-212-1P

![]() |
![]() | ![]() | ![]() | ![]() |
| Общая площадь: | 212.6 м2 |
| Жилая площадь: | 107.93 м2 |
| Габариты: | 11.2 x 13.8 м |
| Цоколь: | Нет |
| Мансарда: | Нет |
| Комната на 1ом этаже: | Есть |
| Спальни и жилые комнаты (кроме гостиных): | 4 шт |
| С/у, ванны: | 3 шт |
| Сауна: | Нет |
| Бассейн: | Нет |
| Бильярд: | Нет |
| Спорткомплекс: | Нет |
| Зимний сад: | Нет |
| Гараж: | Нет |
ЦЕНА АС:
47 900 рубЦены всеx комплектаций
РЕЙТИНГ (оценок нет)
| Внешний вид: | 1 2 3 4 5 |
| Планировки: | 1 2 3 4 5 |
ПОДГОТОВКА ПРОЕКТА
| 3-4 рабочих дня |
АКЦИИ НА ЭТОТ ПРОЕКТ:
Гараж или баня со скидкой 40%
подробнее
Чертежи фундамента сразу после оплаты
подробнее
Бесплатная доставка проекта
подробнее
ОБЗОРЫ ПО ПРОЕКТУ:
Категории проекта: Проекты пенобетонных домов, проекты двухэтажных домов
АННОТАЦИЯ
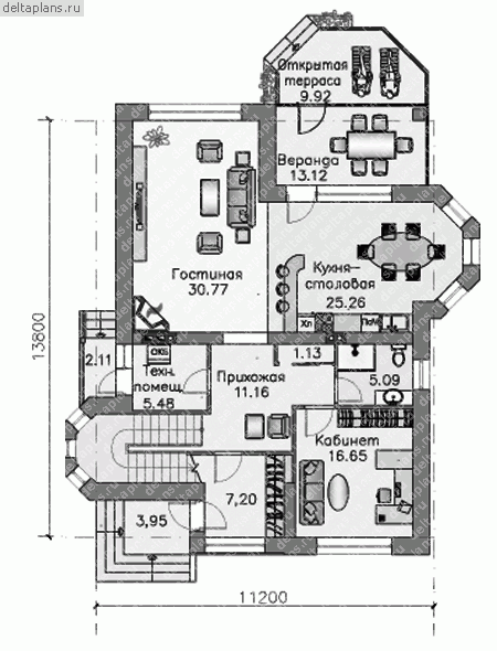
Двухэтажный дом в классическом стиле, который не теряет своей популярности, будет востребован людьми, желающими получить жилище для нескольких поколений семьи, а также дом в таком стиле недвусмысленно говорит о статусе его владельца. Классический стиль здесь представлен в современной интерпретации. Строгие линии и монументальные формы, сдержанная цветовая гаммам отделки, сочетание кирпича, штукатурки и грубого рустового камня, использование кованых элементов, при этом – асимметрия фасадов. Цоколи, расположенные на разных уровнях, эркеры и окна различной конфигурации, сложная форма кровли – дань современным тенденциям в загородной архитектуре. Из особенностей планировки следует отметить наличие кабинета на первом этаже, трех спален на втором, углового помещения гостиной, совмещенной с кухней-столовой, веранды и открытой террасы.
ПЛАН ДОМА1-й этаж![]() 2-й этаж ![]() |
ФАСАДЫ ДОМАвид спереди![]() вид слева ![]() вид справа ![]() вид сзади ![]() |
МАТЕРИАЛЫ ДЛЯ СТРОИТЕЛЬСТВА ДОМА:Фундамент – монолитная ж/б плита
|
ВАРИАНТЫ ПРОЕКТА
ПРОЕКТ ДОМА ЦЕНА
| Комплектация: | Цена (руб): |
| Архитектурно-строительные чертежи | 47 900 |
| Полный комплект чертежей | 58 600 |
| Доп. комплект чертежей без лицензии (копия для строителей) ** | 5 000 |
| Паспорт проекта ** | 3 500 |
| Дополнительные услуги: | Цена (руб): |
| Изменение типа фундамента | 25 000 |
| Вариант системы отопления с теплым полом по заданию Заказчика (цена от) | 15 000 |
| Изменение типа перекрытий | 15 000 |
| Паспорт с изменениями | 13 500 |
(**) Паспорт проекта и Доп. комплект чертежей без лицензии (копия для строителей) отдельно от основного комплекта не продаются.
Купить проект












Для добавления комментария пожалуйста зарегистрируйтесь или войдите в систему.
Всю ответственность за размещаемые материалы и содержащиеся в них сведения несут их авторы.