Загородный коттедж, проект № T-118-1P

![]() |
![]() | ![]() | ![]() | ![]() |
| Общая площадь: | 118.5 м2 |
| Жилая площадь: | 80.63 м2 |
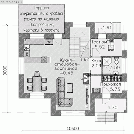
| Габариты: | 10.5 x 9 м |
| Цоколь: | Нет |
| Мансарда: | Нет |
| Спальни и жилые комнаты (кроме гостиных): | 3 шт |
| С/у, ванны: | 2 шт |
| Сауна: | Нет |
| Бассейн: | Нет |
| Бильярд: | Нет |
| Спорткомплекс: | Нет |
| Зимний сад: | Нет |
| Гараж: | Нет |
ЦЕНА АС:
32 300 рубЦены всеx комплектаций
РЕЙТИНГ (оценок нет)
| Внешний вид: | 1 2 3 4 5 |
| Планировки: | 1 2 3 4 5 |
ПОДГОТОВКА ПРОЕКТА
| 4-5 рабочих дня |
АКЦИИ НА ЭТОТ ПРОЕКТ:
Гараж или баня со скидкой 40%
подробнее
Чертежи фундамента сразу после оплаты
подробнее
Бесплатная доставка проекта
подробнее
ОБЗОРЫ ПО ПРОЕКТУ:
По данному проекту обзоров пока нет
Планы/Фасады
Материалы
Варианты (2)
Цены
Форум и отзывы
Категории проекта: Проекты пенобетонных домов, проекты двухэтажных домов
АННОТАЦИЯ
Описания нет.
ПЛАН ДОМА1-й этаж высота: 2.75 м![]() 2-й этаж высота: 1.87 - 2.7 м ![]() |
ФАСАДЫ ДОМАвид спереди![]() вид слева ![]() вид справа ![]() вид сзади ![]() |
МАТЕРИАЛЫ ДЛЯ СТРОИТЕЛЬСТВА ДОМА:Фундаменты – монолитная ж/б плита
|
РАСХОД ОСНОВНЫХ МАТЕРИАЛОВ:
|
ВАРИАНТЫ ПРОЕКТА
ПРОЕКТ ДОМА ЦЕНА
| Комплектация: | Цена (руб): |
| Архитектурно-строительные чертежи | 32 300 |
| Полный комплект чертежей | 42 000 |
| Доп. комплект чертежей без лицензии (копия для строителей) ** | 5 000 |
| Паспорт проекта ** | 3 500 |
| Дополнительные услуги: | Цена (руб): |
| Изменение типа фундамента | 25 000 |
| Изменение типа перекрытий | 15 000 |
| Паспорт с изменениями | 13 500 |
| Вариант системы отопления с теплым полом по заданию Заказчика (цена от) | 12 000 |
(**) Паспорт проекта и Доп. комплект чертежей без лицензии (копия для строителей) отдельно от основного комплекта не продаются.
Купить проект













Для добавления комментария пожалуйста зарегистрируйтесь или войдите в систему.
Всю ответственность за размещаемые материалы и содержащиеся в них сведения несут их авторы.