Цокольный трехэтажный дом № R-490-1K

![]() |
![]() | ![]() | ![]() | ![]() |
| Общая площадь: | 490 м2 |
| Жилая площадь: | 144.7 м2 |
| Площадь застройки: | 233 м2 |
| Габариты: | 16.8 x 15.6 м |
| Цоколь: | Есть |
| Мансарда: | Нет |
| Спальни и жилые комнаты (кроме гостиных): | 5 шт |
| С/у, ванны: | 4 шт |
| Сауна: | Нет |
| Бассейн: | Нет |
| Бильярд: | Есть |
| Спорткомплекс: | Нет |
| Зимний сад: | Нет |
| Гараж: | Нет |
ЦЕНА ПК:
60 000 рубЦены всеx комплектаций
РЕЙТИНГ (1 оценка):
| Суммарный: | |
| Внешний вид: | |
| Планировки: |
ПОДГОТОВКА ПРОЕКТА
| 4-5 рабочих дня |
АКЦИИ НА ЭТОТ ПРОЕКТ:
Бесплатная доставка проекта
подробнее
На этот проект предусмотрена бесплатная доставка (только на территории РФ).
ОБЗОРЫ ПО ПРОЕКТУ:
По данному проекту обзоров пока нет
Планы/Фасады
Материалы
Цены
Форум и отзывы
Категории проекта: Проекты кирпичных домов, проекты трехэтажных домов, проекты домов с цокольным этажом
АННОТАЦИЯ
Проект продается в двух вариантах: дом с гаражом и отдельно дом.
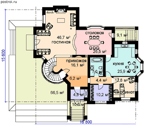
ПЛАН ДОМАцоколь![]() 1-й этаж ![]() 2-й этаж ![]() |
ФАСАДЫ ДОМАвид слева![]() |
МАТЕРИАЛЫ ДЛЯ СТРОИТЕЛЬСТВА ДОМА:Фундаменты – монолитный железобетон |
ПРОЕКТ ДОМА ЦЕНА
| Комплектация: | Цена (руб): |
| Полный комплект чертежей | 60 000 |
| Доп. комплект чертежей без лицензии (копия для строителей) ** | 6 000 |
| Дополнительные услуги: | Цена (руб): |
(**) Паспорт проекта и Доп. комплект чертежей без лицензии (копия для строителей) отдельно от основного комплекта не продаются.
Купить проект









Для добавления комментария пожалуйста зарегистрируйтесь или войдите в систему.
Всю ответственность за размещаемые материалы и содержащиеся в них сведения несут их авторы.