Проект кирпичного дома № O-262-1K

![]() |
![]() | ![]() | ![]() | ![]() |
| Общая площадь: | 262 м2 |
| Габариты: | 20.09 x 18.66 м |
| Цоколь: | Нет |
| Мансарда: | Есть |
| Второй свет: | Есть |
| Спальни и жилые комнаты (кроме гостиных): | 2 шт |
| С/у, ванны: | 2 шт |
| Сауна: | Нет |
| Бассейн: | Нет |
| Бильярд: | Есть |
| Спорткомплекс: | Нет |
| Зимний сад: | Нет |
| Гараж: | Нет |
ЦЕНА АС:
60 000 рубЦены всеx комплектаций
РЕЙТИНГ (оценок нет)
| Внешний вид: | 1 2 3 4 5 |
| Планировки: | 1 2 3 4 5 |
ПОДГОТОВКА ПРОЕКТА
| 4-5 рабочих дня |
АКЦИИ НА ЭТОТ ПРОЕКТ:
Доработка проекта
подробнее
В данный проект возможно внести изменения.
Также читайте статью: внесение изменений в типовой проект.
Также читайте статью: внесение изменений в типовой проект.
ОБЗОРЫ ПО ПРОЕКТУ:
По данному проекту обзоров пока нет
Планы/Фасады
Материалы
Цены
Форум и отзывы
Категории проекта: Проекты кирпичных домов, проекты трехэтажных домов, проекты домов с мансардой
АННОТАЦИЯ
Описания нет.
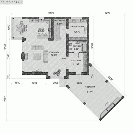
ПЛАН ДОМА1-й этаж высота: 3 м![]() 2-й этаж высота: 1.8-3 м ![]() мансарда ![]() |
ФАСАДЫ ДОМАвид спереди![]() вид слева ![]() вид справа ![]() вид сзади ![]() |
МАТЕРИАЛЫ ДЛЯ СТРОИТЕЛЬСТВА ДОМА:Фундамент – ленточный из сборных ж/б блоков на монолитной подушке |
ПРОЕКТ ДОМА ЦЕНА
| Комплектация: | Цена (руб): |
| Архитектурно-строительные чертежи | 60 000 |
| Доп. комплект чертежей без лицензии (копия для строителей) ** | 3 000 |
| Паспорт проекта ** | 5 000 |
| Дополнительные услуги: | Цена (руб): |
(**) Паспорт проекта и Доп. комплект чертежей без лицензии (копия для строителей) отдельно от основного комплекта не продаются.
Купить проект














Для добавления комментария пожалуйста зарегистрируйтесь или войдите в систему.
Всю ответственность за размещаемые материалы и содержащиеся в них сведения несут их авторы.