Проект большого загородного дома № M-486-1K

![]() |
![]() | ![]() | ![]() | ![]() |
| Общая площадь: | 486.7 м2 |
| Жилая площадь: | 204.1 м2 |
| Площадь застройки: | 376.47 м2 |
| Габариты: | 28.53 x 16.65 м |
| Цоколь: | Есть |
| Мансарда: | Нет |
| Спальни и жилые комнаты (кроме гостиных): | 5 шт |
| С/у, ванны: | 4 шт |
| Сауна: | Нет |
| Бассейн: | Нет |
| Бильярд: | Есть |
| Спорткомплекс: | Нет |
| Зимний сад: | Нет |
| Гараж: | Встр. (2а/м) |
ЦЕНА АС:
40 000 рубЦены всеx комплектаций
РЕЙТИНГ (9 оценок):
| Суммарный: | |
| Внешний вид: | |
| Планировки: |
ПОДГОТОВКА ПРОЕКТА
| 3-4 рабочих дня |
АКЦИИ НА ЭТОТ ПРОЕКТ:
Бесплатная доставка проекта
подробнее
На этот проект предусмотрена бесплатная доставка (только на территории РФ).
ОБЗОРЫ ПО ПРОЕКТУ:
По данному проекту обзоров пока нет
Планы/Фасады
Материалы
Цены
Форум и отзывы
Категории проекта: Проекты кирпичных домов, проекты трехэтажных домов, проекты домов с цокольным этажом, проекты домов из поризованного камня (RAUF, KNAUF)
АННОТАЦИЯ
Описания нет.
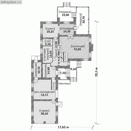
ПЛАН ДОМАцоколь высота: 2.6 м![]() 1-й этаж высота: 3.0 м ![]() 2-й этаж высота: 3.0 м ![]() |
ФАСАДЫ ДОМАвид спереди![]() вид слева ![]() вид справа ![]() вид сзади ![]() |
МАТЕРИАЛЫ ДЛЯ СТРОИТЕЛЬСТВА ДОМА:Фундамент – монолитный ленточный ж/б
|
РАСХОД ОСНОВНЫХ МАТЕРИАЛОВ:
|
ПРОЕКТ ДОМА ЦЕНА
| Комплектация: | Цена (руб): |
| Архитектурно-строительные чертежи | 40 000 |
| Доп. комплект чертежей без лицензии (копия для строителей) ** | 4 000 |
| Паспорт проекта ** | 4 500 |
| Дополнительные услуги: | Цена (руб): |
(**) Паспорт проекта и Доп. комплект чертежей без лицензии (копия для строителей) отдельно от основного комплекта не продаются.
Купить проект












Для добавления комментария пожалуйста зарегистрируйтесь или войдите в систему.
Всю ответственность за размещаемые материалы и содержащиеся в них сведения несут их авторы.