
МАТЕРИАЛЫ ДЛЯ СТРОИТЕЛЬСТВА ДОМА:Фундамент – монолитный ж/б
|
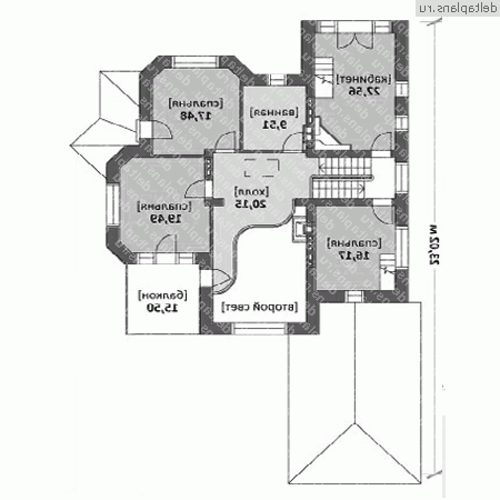
ПЛАН ДОМАцоколь высота: 2.86 м![]() 1-й этаж высота: 3.21 м ![]() 2-й этаж высота: 2.93 м ![]() мансарда ![]() |
ФАСАДЫ ДОМАвид спереди![]() вид слева ![]() вид справа ![]() вид сзади ![]() |
![]() |
Бесплатная доставка проекта На этот проект предусмотрена бесплатная доставка (только на территории РФ). |
| Комплектация: | Цена (руб): |
| Архитектурно-строительные чертежи | 45 000 |
| Доп. комплект чертежей без лицензии (копия для строителей) ** | 4 000 |
| Паспорт проекта ** | 4 500 |
| Дополнительные услуги: | Цена (руб): |
(**) Паспорт проекта и Доп. комплект чертежей без лицензии (копия для строителей) отдельно от основного комплекта не продаются.
Срок получения чертежей - от 1 до 5 дней.
Задать вопрос или заказать проект Вы можете по телефонам: (495) 505-29-81
Адрес офиса: Москва, ул. Новая Басманная, д.19, офис 504.
Каталог проектов deltaplans.ru
E-mail: info@deltaplans.ru