Кирпичный дом коттедж № M-293-1K

![]() |
![]() | ![]() | ![]() | ![]() |
| Общая площадь: | 292.4 м2 |
| Жилая площадь: | 131 м2 |
| Габариты: | 22.32 x 18.58 м |
| Цоколь: | Нет |
| Мансарда: | Нет |
| Спальни и жилые комнаты (кроме гостиных): | 5 шт |
| С/у, ванны: | 3 шт |
| Сауна: | Нет |
| Бассейн: | Нет |
| Бильярд: | Нет |
| Спорткомплекс: | Нет |
| Зимний сад: | Нет |
| Гараж: | Внеш. (2а/м) |
ЦЕНА АС:
24 000 рубЦены всеx комплектаций
РЕЙТИНГ (оценок нет)
| Внешний вид: | 1 2 3 4 5 |
| Планировки: | 1 2 3 4 5 |
ПОДГОТОВКА ПРОЕКТА
| 4-5 рабочих дня |
АКЦИИ НА ЭТОТ ПРОЕКТ:
Бесплатная доставка проекта
подробнее
На этот проект предусмотрена бесплатная доставка (только на территории РФ).
ОБЗОРЫ ПО ПРОЕКТУ:
По данному проекту обзоров пока нет
Планы/Фасады
Материалы
Цены
Форум и отзывы
Категории проекта: Проекты кирпичных домов, проекты двухэтажных домов
АННОТАЦИЯ
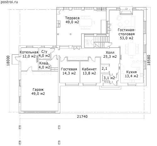
Пятикомнатный одноквартирный жилой кирпичный дом с гаражом на 2 а/м. Кирпичный дом коттедж очень хороший вариант для большого участка. Просторные два этажа дома, с большой и открытой террасой. Объедененное в одно помещение гостинная кухня и столовая, рядом находятся гостевая и кабинет. На втором этаже две ванны, так же можно разместить детские и спальные комнаты.
ПЛАН ДОМА1-й этаж![]() 2-й этаж ![]() |
МАТЕРИАЛЫ ДЛЯ СТРОИТЕЛЬСТВА ДОМА:Фундаменты – монолитные ленточные |
ПРОЕКТ ДОМА ЦЕНА
| Комплектация: | Цена (руб): |
| Архитектурно-строительные чертежи | 24 000 |
| Доп. комплект чертежей без лицензии (копия для строителей) ** | 2 500 |
| Паспорт проекта ** | 2 500 |
| Дополнительные услуги: | Цена (руб): |
(**) Паспорт проекта и Доп. комплект чертежей без лицензии (копия для строителей) отдельно от основного комплекта не продаются.
Купить проект







Для добавления комментария пожалуйста зарегистрируйтесь или войдите в систему.
Всю ответственность за размещаемые материалы и содержащиеся в них сведения несут их авторы.