Проект дома с мансардой № M-243-2K

![]() |
![]() | ![]() | ![]() | ![]() |
| Общая площадь: | 249.48 м2 |
| Жилая площадь: | 89.25 м2 |
| Габариты: | 10.8 x 14.1 м |
| Цоколь: | Нет |
| Мансарда: | Есть |
| Спальни и жилые комнаты (кроме гостиных): | 3 шт |
| С/у, ванны: | 3 шт |
| Сауна: | Есть |
| Бассейн: | Нет |
| Бильярд: | Есть |
| Спорткомплекс: | Нет |
| Зимний сад: | Нет |
| Гараж: | Нет |
ЦЕНА АС:
46 900 рубЦены всеx комплектаций
РЕЙТИНГ (оценок нет)
| Внешний вид: | 1 2 3 4 5 |
| Планировки: | 1 2 3 4 5 |
ПОДГОТОВКА ПРОЕКТА
| 3-4 рабочих дня |
АКЦИИ НА ЭТОТ ПРОЕКТ:
Гараж или баня со скидкой 40%
подробнее
Чертежи фундамента сразу после оплаты
подробнее
Бесплатная доставка проекта
подробнее
ОБЗОРЫ ПО ПРОЕКТУ:
Категории проекта: Проекты кирпичных домов, проекты трехэтажных домов, проекты домов с мансардой
АННОТАЦИЯ
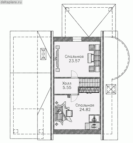
Дом состоит из двух полноценных этажей и жилой мансарды. Первый этаж включает в себя гостиную, кухню-столовую, санузел и техническое помещение. Гостиная с холлом и открытой лестницей формируют единое пространство. Кухня-столовая имеет выход на террасу. При желании террасу возможно застеклить. В этом варианте проекта с жилой мансардой гараж-навес не предусмотрен. Второй этаж – приватная зона, состоящая из трех спален, отделенных друг от друга помещениями холла, санузлов и сауны. Две дополнительные спальни находятся в мансардном этаже, на который можно попасть по второй лестнице.
ПЛАН ДОМА1-й этаж![]() 2-й этаж ![]() мансарда ![]() |
ФАСАДЫ ДОМАвид спереди![]() вид слева ![]() вид справа ![]() вид сзади ![]() |
МАТЕРИАЛЫ ДЛЯ СТРОИТЕЛЬСТВА ДОМА:Фундамент – монолитный ленточный ж/б
|
РАСХОД ОСНОВНЫХ МАТЕРИАЛОВ:
|
ВАРИАНТЫ ПРОЕКТА
ПРОЕКТ ДОМА ЦЕНА
| Комплектация: | Цена (руб): |
| Архитектурно-строительные чертежи | 46 900 |
| Полный комплект чертежей | 57 600 |
| Доп. комплект чертежей без лицензии (копия для строителей) ** | 5 000 |
| Паспорт проекта ** | 3 500 |
| Дополнительные услуги: | Цена (руб): |
| Изменение типа фундамента | 25 000 |
| Вариант системы отопления с теплым полом по заданию Заказчика (цена от) | 15 000 |
| Изменение типа перекрытий | 15 000 |
| Паспорт с изменениями | 13 500 |
(**) Паспорт проекта и Доп. комплект чертежей без лицензии (копия для строителей) отдельно от основного комплекта не продаются.
Купить проект













Для добавления комментария пожалуйста зарегистрируйтесь или войдите в систему.
Всю ответственность за размещаемые материалы и содержащиеся в них сведения несут их авторы.