
МАТЕРИАЛЫ ДЛЯ СТРОИТЕЛЬСТВА ДОМА:Фундаменты – ленточный, из монололитного железобетона |
РАСХОД ОСНОВНЫХ МАТЕРИАЛОВ:
|
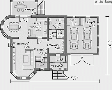
ПЛАН ДОМА1-й этаж высота: 3.00 м![]() 2-й этаж высота: 2.0 - 3.00 м ![]() |
ФАСАДЫ ДОМАвид спереди![]() вид слева ![]() вид справа ![]() вид сзади ![]() |
![]() |
В наличии в офисе Приехав к нам в офис, Вы можете: |
![]() |
Гараж или баня со скидкой 40% Покупая этот проект, вы также можете приобрести проект гаража или бани со скидкой 40%. Вот перечень входящих в акцию проектов: |
![]() |
Чертежи фундамента сразу после оплаты Если строители уже на участке и Вам срочно нужен проект, мы можем выслать чертежи фундамента сразу после оплаты проектной документации. Срок подготовки проекта, как правило, 3-4 рабочих дня (для регионов плюс время на доставку). |
![]() |
Бесплатная доставка проекта На этот проект предусмотрена бесплатная доставка (только на территории РФ). |
| Комплектация: | Цена (руб): |
| Архитектурно-строительные чертежи | 51 100 |
| Полный комплект чертежей | 61 800 |
| Доп. комплект чертежей без лицензии (копия для строителей) ** | 5 000 |
| Паспорт проекта ** | 3 500 |
| Дополнительные услуги: | Цена (руб): |
| Изменение типа фундамента | 25 000 |
| Вариант системы отопления с теплым полом по заданию Заказчика (цена от) | 15 000 |
| Изменение типа перекрытий | 15 000 |
| Паспорт с изменениями | 13 500 |
(**) Паспорт проекта и Доп. комплект чертежей без лицензии (копия для строителей) отдельно от основного комплекта не продаются.
Срок получения чертежей - от 1 до 5 дней.
Задать вопрос или заказать проект Вы можете по телефонам: (495) 505-29-81
Адрес офиса: Москва, ул. Новая Басманная, д.19, офис 504.
Каталог проектов deltaplans.ru
E-mail: info@deltaplans.ru