Дом с бассейном и зоной spa № L-218-1P

![]() |
![]() | ![]() | ![]() | ![]() |
| Общая площадь: | 218.7 м2 |
| Жилая площадь: | 131.16 м2 |
| Габариты: | 11.4 x 14.8 м |
| Цоколь: | Нет |
| Мансарда: | Нет |
| Спальни и жилые комнаты (кроме гостиных): | 3 шт |
| С/у, ванны: | 4 шт |
| Сауна: | Есть |
| Бассейн: | Есть |
| Бильярд: | Нет |
| Спорткомплекс: | Нет |
| Зимний сад: | Нет |
| Гараж: | Нет |
ЦЕНА АС:
43 100 рубЦены всеx комплектаций
РЕЙТИНГ (оценок нет)
| Внешний вид: | 1 2 3 4 5 |
| Планировки: | 1 2 3 4 5 |
ПОДГОТОВКА ПРОЕКТА
| 35-45 рабочих дня |
АКЦИИ НА ЭТОТ ПРОЕКТ:
Гараж или баня со скидкой 40%
подробнее
Бесплатная доставка проекта
подробнее
ОБЗОРЫ ПО ПРОЕКТУ:
Категории проекта: Проекты пенобетонных домов, проекты двухэтажных домов
АННОТАЦИЯ
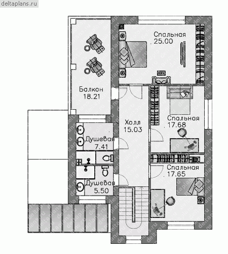
Частный дом с бассейном и зоной spa может быть возведен из газобетона или кирпича, с отделкой наружных стен облицовочным кирпичом. Строгий внешний облик здания навеян северо-европейскими традициями в загородной архитектуре. Четкая геометрия линий и форм фасадов, сдержанная бежево-коричневая гамма наружной отделки, декоративные элементы стропил, панорамные окна различной конфигурации, остекленные крыша и стена тамбура главного фасада, несомненно, понравятся ценителям просторных «воздушных» помещений. Холл первого этажа смещен в сторону главного фасада и размещается в эркере. Благодаря этому лестница, расположенная там же, имеет обширный по площади остекления источник естественного света, что увеличивает степень безопасности и удобства ее эксплуатации. Бассейн, сауна и комната отдыха занимают левую часть первого этажа. Единое пространство кухни-столовой и гостиной с камином соседствует с помещениями хозяйственного назначения. Котельная имеет выход во двор. На втором этаже находятся три смежные спальни. Вход на балкон расположен в холле.
ПЛАН ДОМА1-й этаж![]() 2-й этаж ![]() |
ФАСАДЫ ДОМАвид спереди![]() вид слева ![]() вид справа ![]() вид сзади ![]() |
МАТЕРИАЛЫ ДЛЯ СТРОИТЕЛЬСТВА ДОМА:Фундамент – монолитная ж/б плита
|
ВАРИАНТЫ ПРОЕКТА
ПРОЕКТ ДОМА ЦЕНА
| Комплектация: | Цена (руб): |
| Архитектурно-строительные чертежи | 43 100 |
| Полный комплект чертежей | 51 800 |
| Доп. комплект чертежей без лицензии (копия для строителей) ** | 5 000 |
| Паспорт проекта ** | 3 500 |
| Дополнительные услуги: | Цена (руб): |
| Изменение типа фундамента | 25 000 |
| Вариант системы отопления с теплым полом по заданию Заказчика (цена от) | 15 000 |
| Изменение типа перекрытий | 15 000 |
| Паспорт с изменениями | 13 500 |
(**) Паспорт проекта и Доп. комплект чертежей без лицензии (копия для строителей) отдельно от основного комплекта не продаются.
Купить проект












Для добавления комментария пожалуйста зарегистрируйтесь или войдите в систему.
Всю ответственность за размещаемые материалы и содержащиеся в них сведения несут их авторы.