Проект Индивидуального дома-коттеджа с цоколем № J-279-1P

![]() |
![]() | ![]() | ![]() | ![]() |
| Общая площадь: | 332 м2 |
| Жилая площадь: | 134.76 м2 |
| Площадь застройки: | 175.44 м2 |
| Габариты: | 15 x 11.1 м |
| Высота в коньке: | 12.09 м |
| Цоколь: | Есть |
| Мансарда: | Нет |
| Второй свет: | Есть |
| Комната на 1ом этаже: | Есть |
| Спальни и жилые комнаты (кроме гостиных): | 4 шт |
| С/у, ванны: | 3 шт |
| Сауна: | Есть |
| Бассейн: | Нет |
| Бильярд: | Есть |
| Спорткомплекс: | Нет |
| Зимний сад: | Нет |
| Гараж: | Встр. (1а/м) |
ЦЕНА АС:
46 900 р
44 555 рубЦены всеx комплектаций
РЕЙТИНГ (2 оценки):
| Суммарный: | |
| Внешний вид: | |
| Планировки: |
ПОДГОТОВКА ПРОЕКТА
| 3-4 рабочих дня |
АКЦИИ НА ЭТОТ ПРОЕКТ:
Гараж или баня со скидкой 40%
подробнее
Чертежи фундамента сразу после оплаты
подробнее
Бесплатная доставка проекта
подробнее
Скидка 5%
подробнее
ОБЗОРЫ ПО ПРОЕКТУ:
По данному проекту обзоров пока нет
Планы/Фасады
Материалы
Варианты (1)
Цены
Форум и отзывы
Категории проекта: Проекты пенобетонных домов, проекты трехэтажных домов, проекты домов с цокольным этажом
АННОТАЦИЯ
Описания нет.
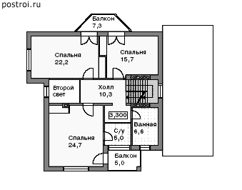
ПЛАН ДОМАцоколь![]() 1-й этаж ![]() 2-й этаж ![]() |
ФАСАДЫ ДОМАвид спереди![]() вид слева ![]() вид справа ![]() вид сзади ![]() |
МАТЕРИАЛЫ ДЛЯ СТРОИТЕЛЬСТВА ДОМА:Фундаменты – сборные ж/б блоки
|
РАСХОД ОСНОВНЫХ МАТЕРИАЛОВ:
|
ВАРИАНТЫ ПРОЕКТА
ПРОЕКТ ДОМА ЦЕНА
| Комплектация: | Цена (руб): | Цена с учетом 5% * скидки (руб.): |
| Архитектурно-строительные чертежи | 44 555 | |
| Доп. комплект чертежей без лицензии (копия для строителей) ** | 4 750 | |
| Паспорт проекта ** | 3 325 | |
| Дополнительные услуги: | Цена (руб): | |
| Изменение типа фундамента | 25 000 | |
| Вариант системы отопления с теплым полом по заданию Заказчика (цена от) | 15 000 | |
| Изменение типа перекрытий | 15 000 | |
| Паспорт с изменениями | 13 500 |
(*) Указанная в таблице скидка относится к акции: "Скидка 5%". Для получения скидки ознакомьтесь с условиями этой акции.
(**) Паспорт проекта и Доп. комплект чертежей без лицензии (копия для строителей) отдельно от основного комплекта не продаются.
Купить проект













Для добавления комментария пожалуйста зарегистрируйтесь или войдите в систему.
Всю ответственность за размещаемые материалы и содержащиеся в них сведения несут их авторы.