Типовой проект дома с гаражом на две машины № H-306-1K

![]() |
![]() | ![]() | ![]() | ![]() |
| Общая площадь: | 306.5 м2 |
| Жилая площадь: | 114.12 м2 |
| Габариты: | 17.1 x 17.1 м |
| Цоколь: | Нет |
| Мансарда: | Нет |
| Второй свет: | Есть |
| Комната на 1ом этаже: | Есть |
| Спальни и жилые комнаты (кроме гостиных): | 4 шт |
| С/у, ванны: | 3 шт |
| Сауна: | Нет |
| Бассейн: | Нет |
| Бильярд: | Нет |
| Спорткомплекс: | Нет |
| Зимний сад: | Нет |
| Гараж: | Встр. (2а/м) |
ЦЕНА АС:
58 500 рубЦены всеx комплектаций
РЕЙТИНГ (оценок нет)
| Внешний вид: | 1 2 3 4 5 |
| Планировки: | 1 2 3 4 5 |
ПОДГОТОВКА ПРОЕКТА
| 3-4 рабочих дня |
АКЦИИ НА ЭТОТ ПРОЕКТ:
Гараж или баня со скидкой 40%
подробнее
Чертежи фундамента сразу после оплаты
подробнее
Бесплатная доставка проекта
подробнее
ОБЗОРЫ ПО ПРОЕКТУ:
По данному проекту обзоров пока нет
Планы/Фасады
Материалы
Варианты (1)
Цены
Форум и отзывы
Категории проекта: Проекты кирпичных домов, проекты двухэтажных домов
АННОТАЦИЯ
Описания нет.
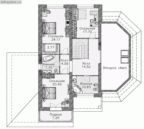
ПЛАН ДОМА1-й этаж высота: 3.0 м![]() 2-й этаж высота: 2.95 м ![]() |
ФАСАДЫ ДОМАвид спереди![]() вид слева ![]() вид справа ![]() вид сзади ![]() |
МАТЕРИАЛЫ ДЛЯ СТРОИТЕЛЬСТВА ДОМА:Фундамент – монолитная ж/б плита
|
РАСХОД ОСНОВНЫХ МАТЕРИАЛОВ:
|
ВАРИАНТЫ ПРОЕКТА
ПРОЕКТ ДОМА ЦЕНА
| Комплектация: | Цена (руб): |
| Архитектурно-строительные чертежи | 58 500 |
| Полный комплект чертежей | 69 200 |
| Доп. комплект чертежей без лицензии (копия для строителей) ** | 5 000 |
| Паспорт проекта ** | 3 500 |
| Дополнительные услуги: | Цена (руб): |
| Изменение типа фундамента | 25 000 |
| Вариант системы отопления с теплым полом по заданию Заказчика (цена от) | 15 000 |
| Изменение типа перекрытий | 15 000 |
| Паспорт с изменениями | 13 500 |
| Приложение: перекрытия сборные ж/б плиты | 5 000 |
| Приложение: фундамент ленточный из сборных Ж/Б блоков с глубиной заложения 1м50см не привязанный к конкретно-геологическим условиям | 5 000 |
(**) Паспорт проекта и Доп. комплект чертежей без лицензии (копия для строителей) отдельно от основного комплекта не продаются.
Купить проект












Для добавления комментария пожалуйста зарегистрируйтесь или войдите в систему.
Всю ответственность за размещаемые материалы и содержащиеся в них сведения несут их авторы.