Проект пенобетонного дома № G-306-2P

![]() |
![]() | ![]() | ![]() | ![]() |
| Общая площадь: | 306 м2 |
| Жилая площадь: | 114 м2 |
| Габариты: | 11.86 x 11.76 м |
| Цоколь: | Есть |
| Мансарда: | Нет |
| Комната на 1ом этаже: | Есть |
| Спальни и жилые комнаты (кроме гостиных): | 5 шт |
| С/у, ванны: | 4 шт |
| Сауна: | Есть |
| Бассейн: | Нет |
| Бильярд: | Нет |
| Спорткомплекс: | Нет |
| Зимний сад: | Нет |
| Гараж: | Встр. (2а/м) |
ЦЕНА АС:
71 800 рубЦены всеx комплектаций
РЕЙТИНГ (оценок нет)
| Внешний вид: | 1 2 3 4 5 |
| Планировки: | 1 2 3 4 5 |
ПОДГОТОВКА ПРОЕКТА
| 25-30 рабочих дня |
ОБЗОРЫ ПО ПРОЕКТУ:
По данному проекту обзоров пока нет
Планы/Фасады
Материалы
Варианты (1)
Цены
Форум и отзывы
Категории проекта: Проекты пенобетонных домов, проекты трехэтажных домов, проекты домов с цокольным этажом
АННОТАЦИЯ
Описания нет.
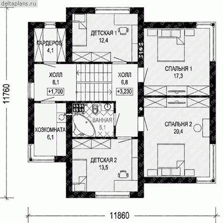
ПЛАН ДОМАцоколь высота: 2.61 м![]() 1-й этаж высота: 2.95 м ![]() 2-й этаж высота: 2.92 м ![]() |
ФАСАДЫ ДОМАвид спереди![]() вид слева ![]() вид справа ![]() вид сзади ![]() |
МАТЕРИАЛЫ ДЛЯ СТРОИТЕЛЬСТВА ДОМА:Фундамент – монолитная ж/б плита |
ВАРИАНТЫ ПРОЕКТА
ПРОЕКТ ДОМА ЦЕНА
| Комплектация: | Цена (руб): |
| Архитектурно-строительные чертежи | 71 800 |
| Полный комплект чертежей | 96 800 |
| Комплект Застройщика | 106 900 |
| Доп. комплект чертежей без лицензии (копия для строителей) ** | 3 000 |
| Паспорт проекта ** | 5 000 |
| Дополнительные услуги: | Цена (руб): |
(**) Паспорт проекта и Доп. комплект чертежей без лицензии (копия для строителей) отдельно от основного комплекта не продаются.
Купить проект
















Для добавления комментария пожалуйста зарегистрируйтесь или войдите в систему.
Всю ответственность за размещаемые материалы и содержащиеся в них сведения несут их авторы.