Двухэтажный дом из газобетонных блоков № G-232-1P

![]() |
![]() | ![]() | ![]() | ![]() |
| Общая площадь: | 232 м2 |
| Жилая площадь: | 129.6 м2 |
| Габариты: | 12.8 x 16.8 м |
| Высота в коньке: | 9.4 м |
| Цоколь: | Нет |
| Мансарда: | Нет |
| Комната на 1ом этаже: | Есть |
| Спальни и жилые комнаты (кроме гостиных): | 5 шт |
| С/у, ванны: | 3 шт |
| Сауна: | Нет |
| Бассейн: | Нет |
| Бильярд: | Нет |
| Спорткомплекс: | Нет |
| Зимний сад: | Нет |
| Гараж: | Встр. (1а/м) |
ЦЕНА АС:
62 800 рубЦены всеx комплектаций
РЕЙТИНГ (3 оценки):
| Суммарный: | |
| Внешний вид: | |
| Планировки: |
ПОДГОТОВКА ПРОЕКТА
| 4-5 рабочих дня |
АКЦИИ НА ЭТОТ ПРОЕКТ:
Чертежи фундамента сразу после оплаты
подробнее
Если строители уже на участке и Вам срочно нужен проект, мы можем выслать чертежи фундамента сразу после оплаты проектной документации. Срок подготовки проекта, как правило, 3-4 рабочих дня (для регионов плюс время на доставку).
Бесплатная доставка проекта
подробнее
ОБЗОРЫ ПО ПРОЕКТУ:
По данному проекту обзоров пока нет
Планы/Фасады
Материалы
Варианты (7)
Цены
Форум и отзывы
Категории проекта: Проекты пенобетонных домов, проекты двухэтажных домов
АННОТАЦИЯ
Описания нет.
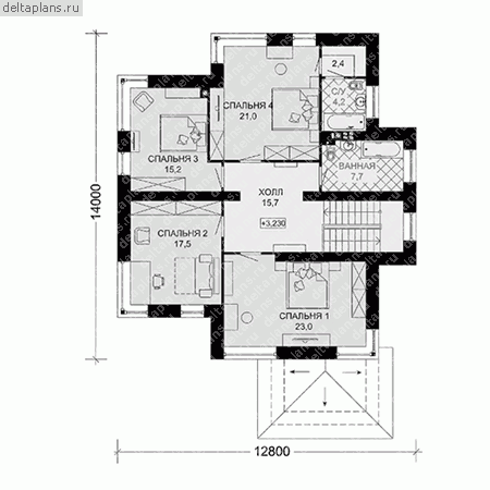
ПЛАН ДОМА1-й этаж высота: 2.95 м![]() 2-й этаж высота: 2.92 м ![]() |
ФАСАДЫ ДОМАвид спереди![]() вид слева ![]() вид справа ![]() вид сзади ![]() |
МАТЕРИАЛЫ ДЛЯ СТРОИТЕЛЬСТВА ДОМА:Фундаменты – монолитная ж/б плита.
|
ВАРИАНТЫ ПРОЕКТА

Проект № G-232-1P (S)
Зеркальный вариант проекта (только архитектурная часть чертежей, инженерные сети прямые) 62 800 руб
ПРОЕКТ ДОМА ЦЕНА
| Комплектация: | Цена (руб): |
| Архитектурно-строительные чертежи | 62 800 |
| Полный комплект чертежей | 77 800 |
| Комплект Застройщика | 88 900 |
| Доп. комплект чертежей без лицензии (копия для строителей) ** | 3 000 |
| Паспорт проекта ** | 5 000 |
| Дополнительные услуги: | Цена (руб): |
| Изменение стенового материала (цена от) кирпич поризовавнный 380 + облицовка кирпич 120 | 13 000 |
(**) Паспорт проекта и Доп. комплект чертежей без лицензии (копия для строителей) отдельно от основного комплекта не продаются.
Купить проект

















Для добавления комментария пожалуйста зарегистрируйтесь или войдите в систему.
Всю ответственность за размещаемые материалы и содержащиеся в них сведения несут их авторы.