Проект каркасного дома № G-127-1S

![]() |
![]() | ![]() | ![]() | ![]() |
| Общая площадь: | 127.1 м2 |
| Жилая площадь: | 71.4 м2 |
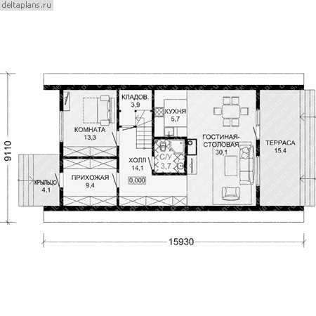
| Габариты: | 15.93 x 9.11 м |
| Цоколь: | Нет |
| Мансарда: | Есть |
| Спальни и жилые комнаты (кроме гостиных): | 3 шт |
| С/у, ванны: | 2 шт |
| Сауна: | Нет |
| Бассейн: | Нет |
| Бильярд: | Нет |
| Спорткомплекс: | Нет |
| Зимний сад: | Нет |
| Гараж: | Нет |
ЦЕНА АС:
38 800 рубЦены всеx комплектаций
РЕЙТИНГ (оценок нет)
| Внешний вид: | 1 2 3 4 5 |
| Планировки: | 1 2 3 4 5 |
ПОДГОТОВКА ПРОЕКТА
| 25-30 рабочих дня |
ОБЗОРЫ ПО ПРОЕКТУ:
По данному проекту обзоров пока нет
Планы/Фасады
Материалы
Цены
Форум и отзывы
Категории проекта: Проекты каркасных домов, проекты двухэтажных домов, проекты домов с мансардой
АННОТАЦИЯ
Описания нет.
ПЛАН ДОМА1-й этаж высота: 2.76 м![]() мансарда ![]() |
ФАСАДЫ ДОМАвид спереди![]() вид слева ![]() вид справа ![]() вид сзади ![]() |
МАТЕРИАЛЫ ДЛЯ СТРОИТЕЛЬСТВА ДОМА:Фундамент – винтовые сваи |
ПРОЕКТ ДОМА ЦЕНА
| Комплектация: | Цена (руб): |
| Архитектурно-строительные чертежи | 38 800 |
| Полный комплект чертежей | 53 800 |
| Комплект Застройщика | 63 900 |
| Доп. комплект чертежей без лицензии (копия для строителей) ** | 3 000 |
| Паспорт проекта ** | 5 000 |
| Дополнительные услуги: | Цена (руб): |
(**) Паспорт проекта и Доп. комплект чертежей без лицензии (копия для строителей) отдельно от основного комплекта не продаются.
Купить проект












Для добавления комментария пожалуйста зарегистрируйтесь или войдите в систему.
Всю ответственность за размещаемые материалы и содержащиеся в них сведения несут их авторы.