Проект дома с навесом для машин № F-173-1P

![]() |
![]() | ![]() | ![]() | ![]() |
| Общая площадь: | 173.6 м2 |
| Жилая площадь: | 92.08 м2 |
| Габариты: | 17.9 x 16.5 м |
| Цоколь: | Нет |
| Мансарда: | Нет |
| Спальни и жилые комнаты (кроме гостиных): | 3 шт |
| С/у, ванны: | 3 шт |
| Сауна: | Нет |
| Бассейн: | Нет |
| Бильярд: | Нет |
| Спорткомплекс: | Нет |
| Зимний сад: | Нет |
| Гараж: | Внеш. (2а/м) |
ЦЕНА АС:
40 500 рубЦены всеx комплектаций
РЕЙТИНГ (оценок нет)
| Внешний вид: | 1 2 3 4 5 |
| Планировки: | 1 2 3 4 5 |
ПОДГОТОВКА ПРОЕКТА
| 3-4 рабочих дня |
АКЦИИ НА ЭТОТ ПРОЕКТ:
Гараж или баня со скидкой 40%
подробнее
Чертежи фундамента сразу после оплаты
подробнее
Бесплатная доставка проекта
подробнее
ОБЗОРЫ ПО ПРОЕКТУ:
По данному проекту обзоров пока нет
Планы/Фасады
Материалы
Варианты (1)
Цены
Форум и отзывы
Категории проекта: Проекты пенобетонных домов, проекты двухэтажных домов
АННОТАЦИЯ
Описания нет.
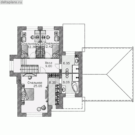
ПЛАН ДОМА1-й этаж![]() 2-й этаж ![]() |
ФАСАДЫ ДОМАвид спереди![]() вид слева ![]() вид справа ![]() вид сзади ![]() |
МАТЕРИАЛЫ ДЛЯ СТРОИТЕЛЬСТВА ДОМА:Фундаменты – плита из монолитного железобетона
|
ВАРИАНТЫ ПРОЕКТА
ПРОЕКТ ДОМА ЦЕНА
| Комплектация: | Цена (руб): |
| Архитектурно-строительные чертежи | 40 500 |
| Полный комплект чертежей | 50 200 |
| Доп. комплект чертежей без лицензии (копия для строителей) ** | 5 000 |
| Паспорт проекта ** | 3 500 |
| Дополнительные услуги: | Цена (руб): |
| Изменение типа фундамента | 25 000 |
| Изменение типа перекрытий | 15 000 |
| Паспорт с изменениями | 13 500 |
| Вариант системы отопления с теплым полом по заданию Заказчика (цена от) | 12 000 |
(**) Паспорт проекта и Доп. комплект чертежей без лицензии (копия для строителей) отдельно от основного комплекта не продаются.
Купить проект












Для добавления комментария пожалуйста зарегистрируйтесь или войдите в систему.
Всю ответственность за размещаемые материалы и содержащиеся в них сведения несут их авторы.