Проект деревянного дома № D-195-1D

![]() |
![]() | ![]() | ![]() | ![]() |
| Общая площадь: | 195 м2 |
| Жилая площадь: | 110.6 м2 |
| Габариты: | 12 x 13.7 м |
| Высота в коньке: | 7.54 м |
| Цоколь: | Нет |
| Мансарда: | Нет |
| Второй свет: | Есть |
| Комната на 1ом этаже: | Есть |
| Спальни и жилые комнаты (кроме гостиных): | 4 шт |
| С/у, ванны: | 3 шт |
| Сауна: | Нет |
| Бассейн: | Нет |
| Бильярд: | Нет |
| Спорткомплекс: | Нет |
| Зимний сад: | Нет |
| Гараж: | Нет |
ЦЕНА АС:
52 800 рубЦены всеx комплектаций
РЕЙТИНГ (оценок нет)
| Внешний вид: | 1 2 3 4 5 |
| Планировки: | 1 2 3 4 5 |
ПОДГОТОВКА ПРОЕКТА
| 25-30 рабочих дня |
ОБЗОРЫ ПО ПРОЕКТУ:
По данному проекту обзоров пока нет
Планы/Фасады
Материалы
Цены
Форум и отзывы
Категории проекта: Проекты деревянных домов, проекты двухэтажных домов
АННОТАЦИЯ
Описания нет.
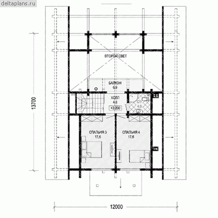
ПЛАН ДОМА1-й этаж высота: 2.90 м![]() 2-й этаж высота: 2.77 м ![]() |
ФАСАДЫ ДОМАвид спереди![]() вид слева ![]() вид справа ![]() вид сзади ![]() |
МАТЕРИАЛЫ ДЛЯ СТРОИТЕЛЬСТВА ДОМА:Фундамент – ленточный монолитный ж/б |
ПРОЕКТ ДОМА ЦЕНА
| Комплектация: | Цена (руб): |
| Архитектурно-строительные чертежи | 52 800 |
| Полный комплект чертежей | 67 800 |
| Комплект Застройщика | 77 900 |
| Доп. комплект чертежей без лицензии (копия для строителей) ** | 3 000 |
| Паспорт проекта ** | 5 000 |
| Дополнительные услуги: | Цена (руб): |
(**) Паспорт проекта и Доп. комплект чертежей без лицензии (копия для строителей) отдельно от основного комплекта не продаются.
Купить проект












Для добавления комментария пожалуйста зарегистрируйтесь или войдите в систему.
Всю ответственность за размещаемые материалы и содержащиеся в них сведения несут их авторы.