Проект пенобетонного дома № C-246-1P

![]() |
![]() | ![]() | ![]() | ![]() |
| Общая площадь: | 246.15 м2 |
| Жилая площадь: | 82.5 м2 |
| Площадь застройки: | 187 м2 |
| Габариты: | 15.2 x 12.2 м |
| Высота в коньке: | 8 м |
| Цоколь: | Нет |
| Мансарда: | Есть |
| Спальни и жилые комнаты (кроме гостиных): | 3 шт |
| С/у, ванны: | 2 шт |
| Сауна: | Нет |
| Бассейн: | Нет |
| Бильярд: | Нет |
| Спорткомплекс: | Нет |
| Зимний сад: | Нет |
| Гараж: | Встр. (1а/м) |
ЦЕНА АС:
43 200 рубЦены всеx комплектаций
РЕЙТИНГ (оценок нет)
| Внешний вид: | 1 2 3 4 5 |
| Планировки: | 1 2 3 4 5 |
ПОДГОТОВКА ПРОЕКТА
| 4-5 рабочих дня |
АКЦИИ НА ЭТОТ ПРОЕКТ:
Бесплатная доставка проекта
подробнее
На этот проект предусмотрена бесплатная доставка (только на территории РФ).
ОБЗОРЫ ПО ПРОЕКТУ:
По данному проекту обзоров пока нет
Планы/Фасады
Материалы
Цены
Форум и отзывы
Категории проекта: Проекты пенобетонных домов, проекты двухэтажных домов, проекты домов с мансардой
АННОТАЦИЯ
Описания нет.
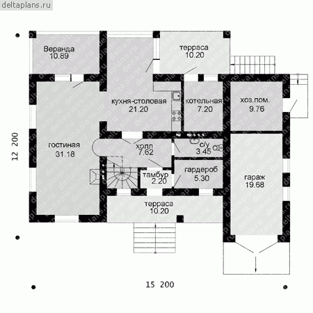
ПЛАН ДОМА1-й этаж![]() мансарда ![]() |
ФАСАДЫ ДОМАвид спереди![]() вид слева ![]() вид справа ![]() вид сзади ![]() |
МАТЕРИАЛЫ ДЛЯ СТРОИТЕЛЬСТВА ДОМА:Фундаменты – ленточный монолитный ж/б
|
РАСХОД ОСНОВНЫХ МАТЕРИАЛОВ:
|
ПРОЕКТ ДОМА ЦЕНА
| Комплектация: | Цена (руб): |
| Архитектурно-строительные чертежи | 43 200 |
| Полный комплект чертежей | 51 200 |
| Доп. комплект чертежей без лицензии (копия для строителей) ** | 3 000 |
| Паспорт проекта ** | 5 000 |
| Дополнительные услуги: | Цена (руб): |
(**) Паспорт проекта и Доп. комплект чертежей без лицензии (копия для строителей) отдельно от основного комплекта не продаются.
Купить проект











Для добавления комментария пожалуйста зарегистрируйтесь или войдите в систему.
Всю ответственность за размещаемые материалы и содержащиеся в них сведения несут их авторы.