Небольшой трехэтажный коттедж с мансардой № A-193-1K

![]() |
![]() | ![]() | ![]() | ![]() |
| Общая площадь: | 193.1 м2 |
| Габариты: | 10.1 x 8.4 м |
| Цоколь: | Есть |
| Мансарда: | Есть |
| Спальни и жилые комнаты (кроме гостиных): | 3 шт |
| С/у, ванны: | 1 шт |
| Сауна: | Нет |
| Бассейн: | Нет |
| Бильярд: | Есть |
| Спорткомплекс: | Нет |
| Зимний сад: | Нет |
| Гараж: | Нет |
ЦЕНА ПК:
30 250 рубЦены всеx комплектаций
РЕЙТИНГ (оценок нет)
| Внешний вид: | 1 2 3 4 5 |
| Планировки: | 1 2 3 4 5 |
ПОДГОТОВКА ПРОЕКТА
| 4-5 рабочих дня |
АКЦИИ НА ЭТОТ ПРОЕКТ:
Бесплатная доставка проекта
подробнее
На этот проект предусмотрена бесплатная доставка (только на территории РФ).
ОБЗОРЫ ПО ПРОЕКТУ:
По данному проекту обзоров пока нет
Планы/Фасады
Материалы
Цены
Форум и отзывы
Категории проекта: Проекты кирпичных домов, проекты трехэтажных домов, проекты домов с цокольным этажом, проекты домов с мансардой
АННОТАЦИЯ
Описания нет.
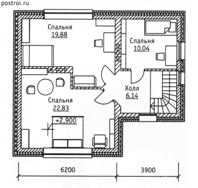
ПЛАН ДОМАцоколь![]() 1-й этаж ![]() мансарда ![]() |
ФАСАДЫ ДОМАвид спереди![]() вид слева ![]() вид справа ![]() вид сзади ![]() |
МАТЕРИАЛЫ ДЛЯ СТРОИТЕЛЬСТВА ДОМА:Фундаменты – ленточные сборные |
ПРОЕКТ ДОМА ЦЕНА
| Комплектация: | Цена (руб): |
| Полный комплект чертежей | 30 250 |
| Доп. комплект чертежей без лицензии (копия для строителей) ** | 3 000 |
| Дополнительные услуги: | Цена (руб): |
(**) Паспорт проекта и Доп. комплект чертежей без лицензии (копия для строителей) отдельно от основного комплекта не продаются.
Купить проект












Для добавления комментария пожалуйста зарегистрируйтесь или войдите в систему.
Всю ответственность за размещаемые материалы и содержащиеся в них сведения несут их авторы.